Phone
+91 99037 08527
+91 98366 92370
Address
CE/1/A/106, Street No - 187, Action Area - 1C, 3rd Floor, New Town, Kolkata - 700156
Trimond Co-Operative Housing Society Limited
Find the best real estate agents in your area, view property listings, and explore mortgage calculators.
Modern, well-designed apartments
Secure and family-friendly environment
Easy financing options available
Prime locations with excellent connectivity
Professional real estate assistance
About Residence
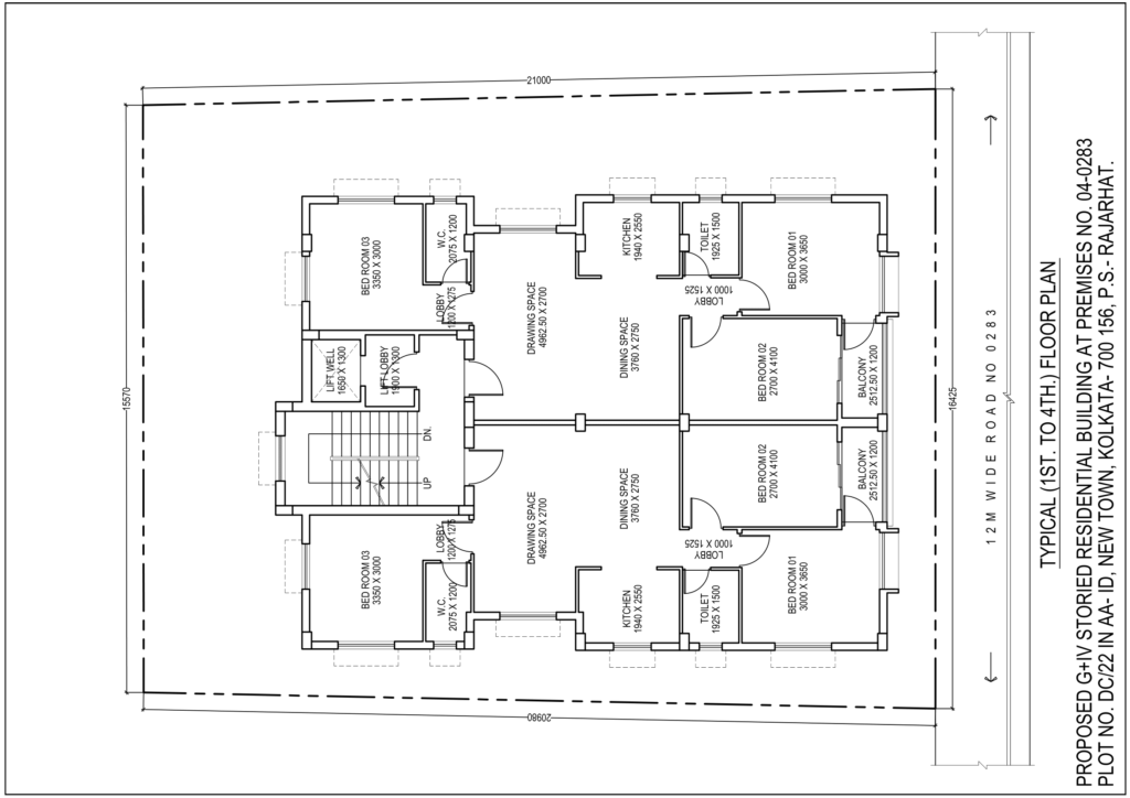
Floor Plan
ADDRESS
DC – 22, Street No – 283, Action Area – 1D, New Town, Kolkata – 700156
Nearby Landmark
New Town School
Property Details
3 BHK || 1250 Sq Ft
Orientation & Facing
South – East Facing
Amenties

Dedicated Care-Taker Room
A dedicated space for on-site staff ensures seamless maintenance and security. This feature enhances convenience for residents by providing 24/7 assistance for building-related needs.

Rainwater Reservoir
A smart water conservation system that collects and stores rainwater for sustainable use. This helps in reducing water consumption and promoting eco-friendly living.

Dedicated Green Area
A thoughtfully designed green space for relaxation and recreation. It enhances the environment, promotes well-being, and adds to the aesthetic appeal of the property.
Location Advantages
- Biswa Bangla Gate – 5 mins by car
- Tata Cancer Hospital – 6 mins by car
- Chittaranjan Hospital – 4 mins by car
- New Town School – 2 mins by walk
- Main Road – 2 mins by walk
SPECIFICATION
of
Flats
BUILDING
R.C.C. frame structure with individual column pile foundation ensuring strength and durability for a safe and stable living environment.
WALLS
Constructed using AAC blocks with interior and exterior plastering, ensuring durability, thermal insulation, and energy efficiency for a comfortable home.
WINDOWS
Powder-coated aluminum windows with integrated grills, offering a combination of security, ventilation, and an elegant aesthetic for a modern living space.
DOORS
Flush door panels with “Sal” wood frames, providing durability, aesthetic appeal, and strength for secure and stylish interiors.
FLOORING
High-quality vitrified tiles from Nitco or equivalent, ensuring a polished look, easy maintenance, and long-lasting durability in all living areas.
KITCHEN
Granite cooking platform with a stainless steel sink and wall tiles up to 2 feet high, ensuring a stylish, hygienic, and functional cooking space.
TOILET
Hot and cold water lines with premium sanitary fittings from Essco by Jaquar, Hindware, or Parryware, and wall tiles up to the door sill level.
ELECTRICITY
Sufficient electrical points with quality wires and switches from brands like Havells, Mescab, or Crabtree, ensuring safety and reliability.
BALCONY
Securely designed balcony with durable grills selected by the developer, providing safety, ventilation, and aesthetic appeal to your home.
ROOF AND TERRACE
Finished with roof tiles for durability, weather resistance, and a refined look, making it a functional outdoor space.
LIFT
One standard lift with a collapsible gate and a machine room by J.D. Elevators, ensuring smooth and safe vertical transportation.
PUTTY
Smooth interior wall finish with Berger Paints putty, ensuring a flawless surface for paint application and long-lasting durability.
PAINT
Exterior painting using high-quality Berger Paints, designed as per the developer’s selection, ensuring weather resistance and aesthetic appeal.
GROUND FLOOR
Open-to-air spaces covered with parking tiles, ensuring durability and an organized, clean look for parking and movement areas.
Talk to our consultant today
Looking for your dream home or a profitable investment? Our expert consultants are here to guide you through every step. Discover premium living spaces tailored to your needs.